Offers in excess of £125,000 · Sussex Street, Scarborough, North Yorkshire
Available
Features
  • TWO BEDROOM MID-TERRACE HOME
  • MODERN CONSTRUCTION
  • ALLOCATED OFF STREET CAR PARKING
  • ENCLOSED COURTYARD GARDEN
  • LOCATED IN THE HEART OF SCARBOROUGH TOWN CENTRE
  • INTERNAL VIEWING ADVISED
2 beds 1 bath
Description
+++Occupying a central location within Scarborough, this modern TWO BEDROOM property offers a blend of convenience and comfort. The home features a good-sized KITCHEN/DINING SPACE, valuable outdoor space and uncommonly found in Scarborough centre, this property includes a dedicated PARKING SPACE!+++

Perfectly positioned near Scarborough town centre, this property is located just a stones throw away from local shops, amenities, and the South Bay beach. Briefly, it includes a forecourt, a front-facing lounge, and a generous rear-facing kitchen diner with ample under stairs storage on the ground floor. The first floor hosts two well-appointed bedrooms and a modern bathroom. Completing this attractive opportunity is an enclosed patio garden to the rear and allocated off-street car parking.

Don't miss out on this rare opportunity to own a home with allocated parking in the heart of town—viewing is highly recommended! Contact Liam Darrell Estate Agents for further information.

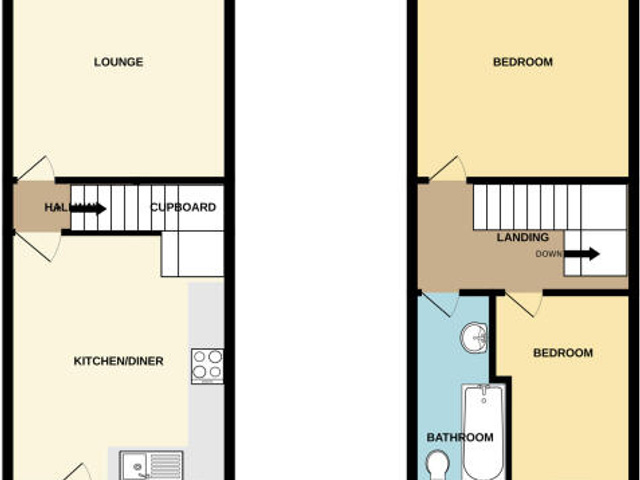
Room Dimensions:

GROUND FLOOR
LOUNGE 12' 0" x 12' 11" (3.67m x 3.95m)
KITCHEN/DINER 13' 10" x 12' 0" (4.24m x 3.67m)

FIRST FLOOR
BEDROOM 12' 11" x 12' 0" (3.94m x 3.67m)
LANDING
BEDROOM 10' 9" x 7' 6" (3.28m x 2.3m)
BATHROOM
Additional Details
Bedrooms: 2 Bedrooms
Bathrooms: 1 Bathroom
Receptions: 1 Reception
Tenure: Freehold
Rights and Easements: Ask Agent
Risks: Ask Agent
EPC Charts
EPC EE chart
EPC EI chart
Floorplans
Branch Office
Liam Darrell Estate & Letting Agents - Scarborough

Liam Darrell Estate & Letting Agents - Scarborough

Suite 7, William Street Business Centre
7A Lower Clark Street
Scarborough
North Yorkshire
YO12 7PW
Phone: 01723 670004
Contact
Powered by Apex27 Estate Agent Software & Letting Agent Software